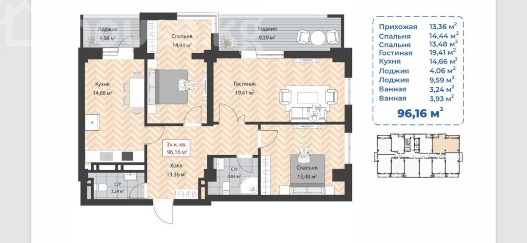
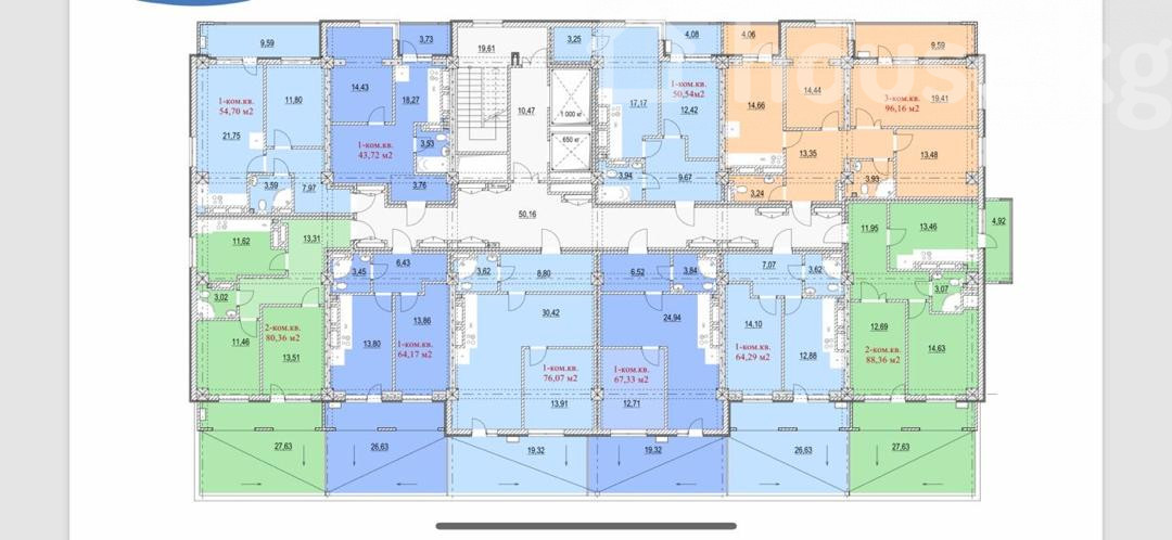
3-комн. кв., 97 м2

Бишкек, Чуй - Алматинка, Фрунзе/Алматинка
$ 97 000
8 494 290 сом
$ 1 000/м2
87 570 сом/м2
Добавлено 3 месяца назад Поднято 20 часов назад  777  1
Тип предложения
от агента
Серия
элитка
Дом
кирпичный, 2027 г.
Этаж
10 этаж из 14
Площадь
97 м2
Отопление
на газе
Состояние
под самоотделку (псо)
Телефон
есть
Интернет
adsl
Санузел
раздельный
Газ
магистральный
Балкон
лоджия
Входная дверь
бронированная
Парковка
паркинг
Мебель
пустая
Пол
пробковое
Высота потолков
3 м.
Безопасность
домофон, сигнализация, видеодомофон, охрана, кодовый замок, видеонаблюдение
Разное
улучшенная, новая сантехника, неугловая, комнаты изолированы, кладовка, тихий двор, удобно под бизнес
Правоустанавливающие документы
договор долевого участия, красная книга
Возможность рассрочки
нет
Возможность ипотеки
нет
Возможность обмена
обмен не предлагать

Средняя цена

Для сравнения недвижимости House.kg использует такие параметры как комнатность, серия, район расположения. Эти цифры могут не совпадать с рыночной ценой, на которую влияет множество факторов. Для получения более точных данных воспользуйтесь профессиональной оценкой недвижимости.

Продажа, 3-комн. кв., элитка, Бишкек, Чуй - Алматинка

$ 116 000 $ 1 294/м2 10 158 120 сом 113 316 сом/м2

Описание от продавца

Срочно! Продаю 3- комнатную Элитную квартиру на Фрунзе/ Алма-атинской; Дом Комфорт+ Класса; Этаж 10 из 14 Застройщик: Строительная Компания «Авента Строй» Жилой Комплекс: «Ак-Нур» Дом на стадии строительства, псо в начале 2027 году; Коммуникации в Доме все Центральные, отопление на Газе; Утепление дома из базальтового волокна; Фасад дома снаружи из Керамогранита; Квадратура: 97м2 Цена Срочная 97000$ Обращайтесь по телефону: 0558232374 (Whats app / звонки) 0702645312 (Whats app / звонки)

Объявление на карте

Комментарии отключены