Коммерческая недвижимость, 500 м2

Бишкек, Горького - Алма-Атинская, 7 апреля 1/1 / Горького
$ 750 000
65 617 500 сом
$ 1 500/м2
131 235 сом/м2
Добавлено 5 месяцев назад Поднято 23 дня назад  2183  2
Тип предложения
от собственника
Дом
кирпичный, 2025 г.
Тип объекта
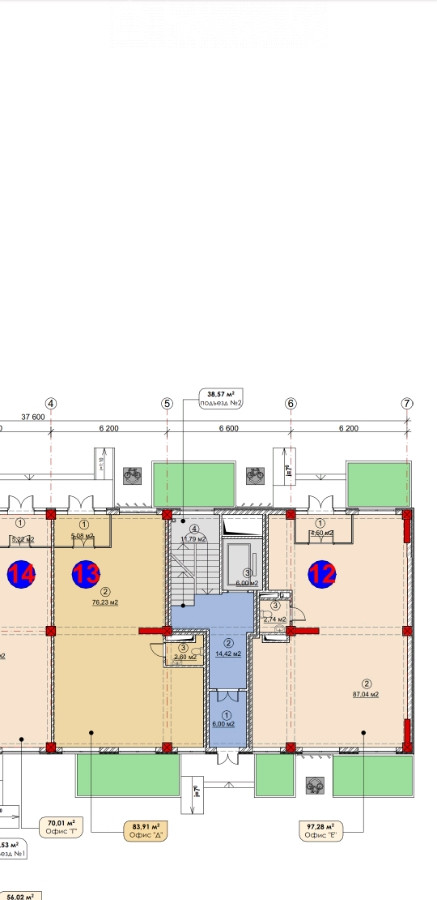
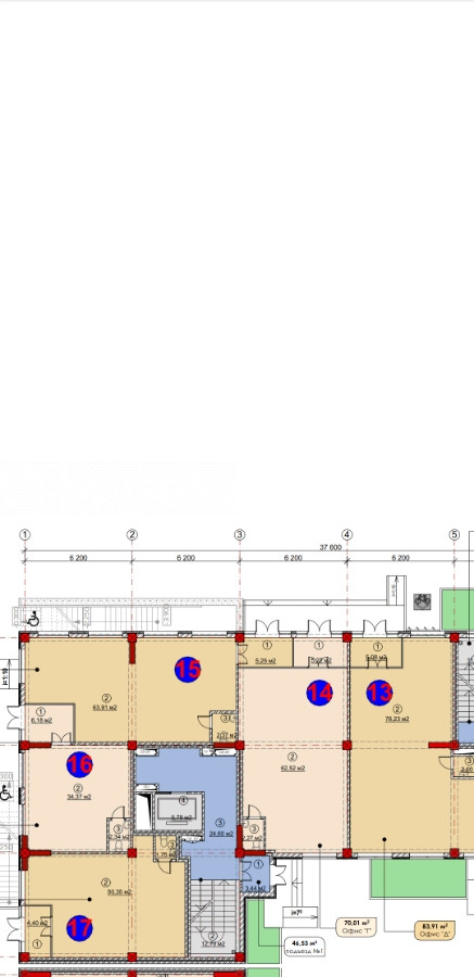
магазины, бутики
Этаж
1 этаж из 10
Площадь
500 м2
Состояние
под самоотделку (псо)
Высота потолков
3 м.
Возможность обмена
рассмотрю варианты

Средняя цена

Для сравнения недвижимости House.kg использует такие параметры как комнатность, серия, район расположения. Эти цифры могут не совпадать с рыночной ценой, на которую влияет множество факторов. Для получения более точных данных воспользуйтесь профессиональной оценкой недвижимости.

Продажа, коммерческая недвижимость, Бишкек, Горького - Алма-Атинская

$ 202 000 $ 1 500/м2 17 672 980 сом 131 235 сом/м2

Описание от продавца

🏢 Коммерческие помещения под бизнес от застройщика КУТ — Ваш старт к успешному делу! Продаются современные коммерческие помещения, от 40м2 до 70м2 на выбор по цене всего 1500$ за м² в одном из самых перспективных районов города! 📍 Расположение: Район Технопарк, пересечение ул. Алматинская и ул. Горького — это место с высокой проходимостью, развитой инфраструктурой и отличной транспортной доступностью. ✅ Идеально под любые виды бизнеса: — Магазины — Кофейни и рестораны — Офисы — Медицинские или образовательные центры — Салоны красоты и многое другое 🏗️ Преимущества: 1 этаж — прямая видимость и легкий доступ для клиентов Кирпичное здание — надежность, энергоэффективность и комфорт Новострой от строительной компании КУТ Высокие потолки, большие окна, удобные планировки Есть возможность выбрать площадь помещения — под ваши задачи и масштаб бизнеса Помещения без отделки — свободная планировка под индивидуальный дизайн 💼 Прямая продажа от собственника — без комиссии и скрытых платежей! Отличное решение для собственного дела или арендного бизнеса с высокой доходностью. Есть варианты на обмен ✊

Объявление на карте

Вам нужно войти или зарегистрироваться, чтобы написать комментарий