Отчёт из Кадастра

Дом, 5-комн., 166.56 м2

Бишкек, Арча-Бешик ж/м, Проектируемая
$ 195 980
17 160 000 сом
$ 1 177/м2
103 026 сом/м2
Добавлено 4 месяца назад Поднято 18 часов назад  803
Тип предложения
от агента
Серия
индивид. планировка
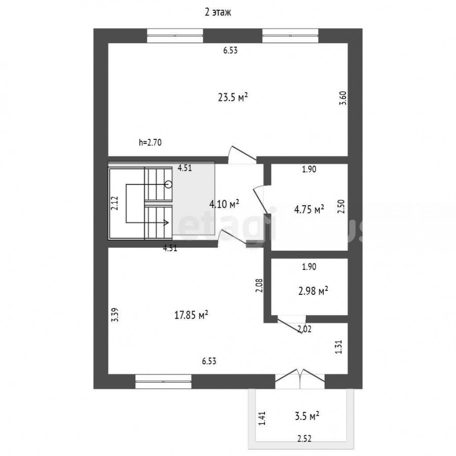
Кол-во этажей
3
Площадь
166.56 м2, жилая: 166.56 м2
Площадь участка
1.25 сотка
Возможность ипотеки
есть

Средняя цена

Для сравнения недвижимости House.kg использует такие параметры как комнатность, серия, район расположения. Эти цифры могут не совпадать с рыночной ценой, на которую влияет множество факторов. Для получения более точных данных воспользуйтесь профессиональной оценкой недвижимости.

Продажа, дом, 5-комн., Бишкек, Арча-Бешик ж/м

$ 318 638 $ 1 598/м2 27 899 943 сом 139 921 сом/м2

Описание от продавца

Продается просторный кирпичный таунхаус в селе Селекционная. Готов для комфортной жизни. Предлагаем вашему вниманию современный трехэтажный таунхаус, сочетающий в себе надежность, продуманную планировку и выгодные условия. Это идеальный вариант для тех, кто ценит простор и уют загородной жизни с перспективой развития инфраструктуры. Ключевые характеристики: * Тип дома: Кирпичный, трехэтажный таунхаус. * Планировка: * 1 этаж: Светлая и просторная гостиная, совмещенная с современной кухней — идеальное пространство для отдыха и приема гостей. * 2 и 3 этажи: Уютные спальни и комнаты для всех членов семьи. Планировка позволяет легко зонировать пространство. * Коммуникации: В доме предусмотрено 3 санузла (по одному на каждом этаже), что обеспечивает максимальный комфорт для большой семьи или гостей. * Коммуникации: На данный момент используется современный и эффективный септик. Важное преимущество — в ближайшее время в районе будет проведена центральная канализация, что значительно повысит комфорт и стоимость недвижимости. Преимущества таунхауса: ✅ Готовность к заселению. Фасад здания полностью завершен, а внутренняя отделка выполнена на уровне «white box». Это огромная экономия вашего времени и средств: вам не придется заниматься черновой отделкой, можно сразу приступать к чистовой и созданию интерьера своей мечты. ✅ Надежность и долговечность. Кирпичные стены обеспечивают высокую прочность, отличную теплоизоляцию зимой и приятную прохладу летом. ✅ Практичная планировка. Разделение на дневную (гостиная-кухня) и ночную (комнаты на верхних этажах) зоны создает комфортное и приватное пространство для всей семьи. ✅ Максимальное удобство. Наличие трех санузлов избавляет от утренних очередей и делает жизнь большого семейства гораздо более организованной. ✅ Перспектива роста. Скорость проведения центральной канализации — это не только повышение уровня комфорта, но и выгодная инвестиция. Стоимость подобной недвижимости с центральными коммуникациями будет только расти. ✅ Комфортная среда. Село Селекционная предлагает спокойную атмосферу загородной жизни вдали от городской суеты, при этом оставаясь в доступной транспортной связанности. Этот таунхаус — готовое решение для вашей семьи. Вам осталось только добавить свои дизайнерские штрихи и наслаждаться жизнью в новом, просторном доме. Свяжитесь с нами, чтобы назначить просмотр и оценить все преимущества этого предложения лично. Доп. описание: отопление: газовое, канализация: септик, улучшенная черновая отделка Номер в базе: 12087224. Район: Ленинский район

Справки из Кадастра:

г. Бишкек, р-н Ленинский, ул. Проектируемая ( с. Селекционное)

Закажите проверку юристом:

Объявление на карте

Написать комментарий