Дом, 6 и более комнат, 300 м2

Бишкек, Рабочий Городок
$ 270 000
23 638 500 сом
$ 900/м2
78 795 сом/м2
Добавлено 2 месяца назад Поднято 12 часов назад  741  1
Тип предложения
от агента
Дом
кирпичный, 2025 г.
Кол-во этажей
3
Площадь
300 м2
Площадь участка
6 соток
Отопление
на газе
Состояние
под самоотделку (псо)
Телефон
нет
Интернет
оптика
Санузел
2 с/у и более
Канализация
центральная
Питьевая вода
центральное водоснабжение
Электричество
есть
Газ
магистральный
Мебель
пустая
Высота потолков
3 м.
Разное
пластиковые окна, 3 фазы
Правоустанавливающие документы
договор купли-продажи, технический паспорт, красная книга
Возможность ипотеки
есть
Возможность обмена
с доплатой покупателя

Средняя цена

Для сравнения недвижимости House.kg использует такие параметры как комнатность, серия, район расположения. Эти цифры могут не совпадать с рыночной ценой, на которую влияет множество факторов. Для получения более точных данных воспользуйтесь профессиональной оценкой недвижимости.

Продажа, дом, 6 и более комнат, Бишкек, Рабочий Городок

$ 270 000 $ 1 385/м2 23 638 500 сом 121 257 сом/м2

Описание от продавца

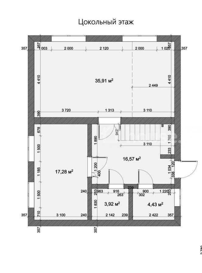
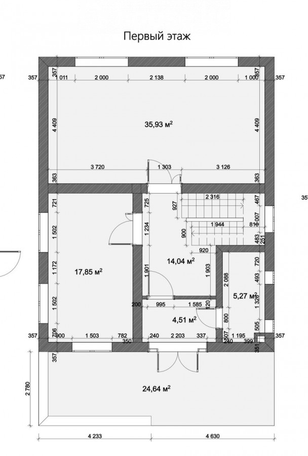
Продаётся дом 300 м² под ПСО на участке 6 соток в Рабочем городке Дом 2х уровневый с цокольным этажом Стены 2 кирпича Окна 5 камерные Цокольный этаж утеплён высота потолков 3.3м на остальных этажах 3м 6 комнат, кухня-гостиная, 4 санузла. Унитазы уже приобретены Терраса 24.64 м² с тёплым полом Отопление газовое, тёплые полы + радиаторы Все коммуникации центральные 30 метров от первой линии Имеется дизайн проект, технический проект Документы: ДКП, техпаспорт, красная книга Рассмотрим обмен на авто Цена 270 000$ id 1133

Объявление на карте

Вам нужно войти или зарегистрироваться, чтобы написать комментарий