1-комн. кв., 49 м2

Бишкек, Магистраль, Куттубаева/Южн. Магистраль
$ 58 699
5 140 271 сом
$ 1 198/м2
104 903 сом/м2
Добавлено 2 месяца назад Поднято 1 час назад  558  2
Тип предложения
от агента
Серия
элитка
Дом
монолитный, 2023 г.
Этаж
4 этаж из 10
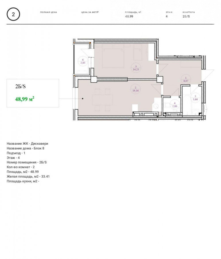
Площадь
49 м2
Состояние
под самоотделку (псо)
Высота потолков
3 м.

Средняя цена

Для сравнения недвижимости House.kg использует такие параметры как комнатность, серия, район расположения. Эти цифры могут не совпадать с рыночной ценой, на которую влияет множество факторов. Для получения более точных данных воспользуйтесь профессиональной оценкой недвижимости.

Продажа, 1-комн. кв., элитка, Бишкек, Магистраль

$ 71 050 $ 1 450/м2 6 221 849 сом 126 977 сом/м2

Описание от продавца

Продается 1 комнатная квартира в ЖК Discovery 8 блок , 4 этаж Площадь 48.99м2 ПСО сдача конец 2026 Окна на запад на Нью Сити ID: 73866

Объявление на карте

Вам нужно войти или зарегистрироваться, чтобы написать комментарий