Отчёт из Кадастра

Коммерческая недвижимость, 435 м2

Бишкек, Мадина, Менделеева
$ 532 602
46 640 000 сом
$ 1 224/м2
107 218 сом/м2
Добавлено 2 месяца назад Поднято 48 минут назад  616  1
Тип предложения
от агента
Этаж
цоколь из 3 этажей
Площадь
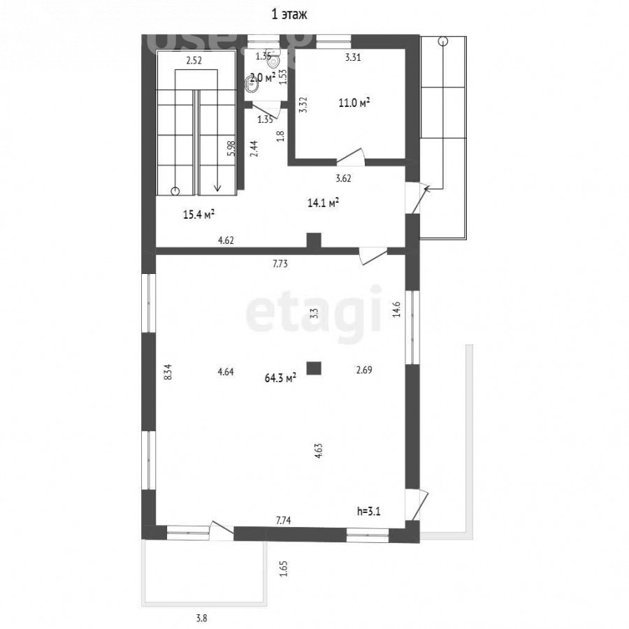
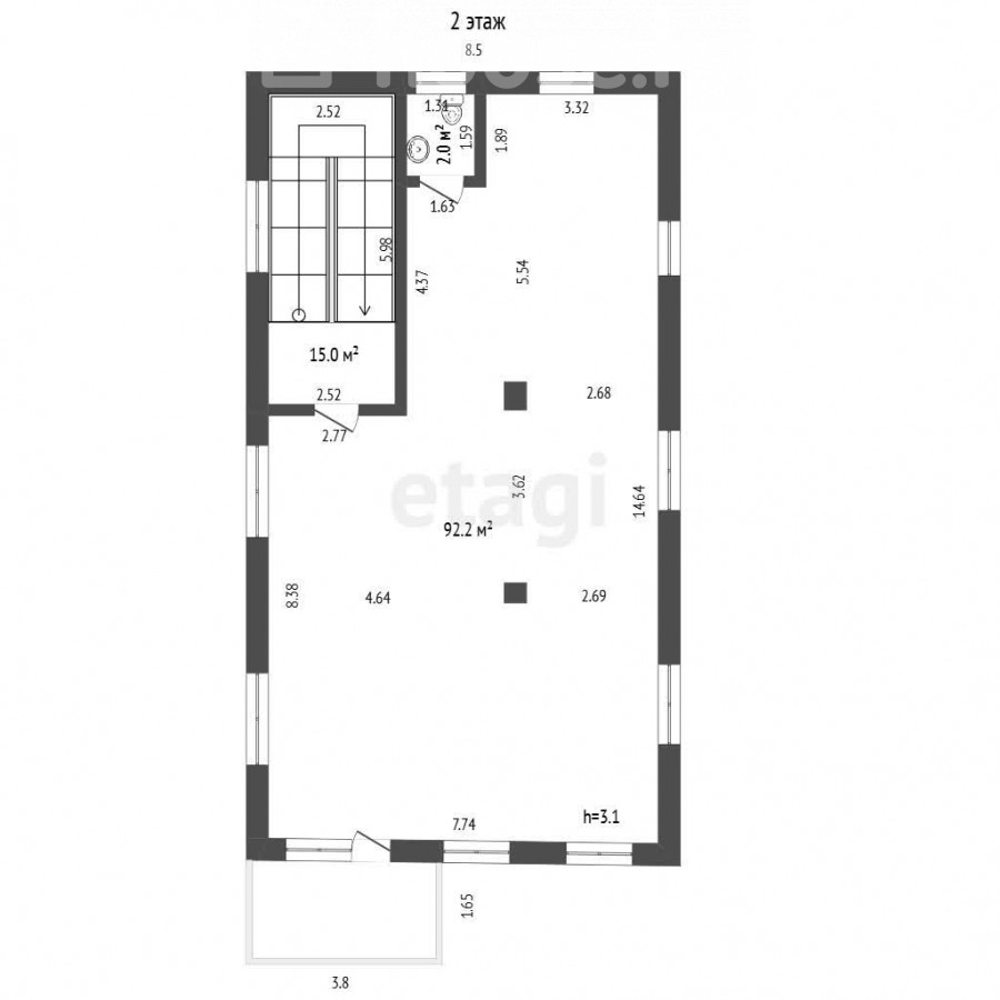
435 м2, жилая
Площадь участка
4.35 сотки
Высота потолков
3 м.
Возможность ипотеки
нет

Средняя цена

Для сравнения недвижимости House.kg использует такие параметры как комнатность, серия, район расположения. Эти цифры могут не совпадать с рыночной ценой, на которую влияет множество факторов. Для получения более точных данных воспользуйтесь профессиональной оценкой недвижимости.

Продажа, коммерческая недвижимость, Бишкек, Мадина

$ 422 519 $ 1 594/м2 36 999 989 сом 139 587 сом/м2

Описание от продавца

Продается коммерческое помещение — 3 этажа + цоколь (-1) возле рынка Мадина Продается просторное коммерческое помещение общей площадью 435 м² в одном из самых оживленных торговых районов города — рядом с рынком Мадина в Бишкеке. Почему это выгодно: Локация с высокой проходимостью — рынок Мадина славится большим потоком людей, специализируется на тканях, фурнитуре и товарах для швейного бизнеса, что привлекает покупателей и предпринимателей со всего города. Отличная транспортная доступность — рядом остановки общественного транспорта, удобный подъезд для клиентов и персонала. Идеально подходит под: швейный цех / производство, склад и логистику, оптовую или розничную торговлю, офис / сервисный центр. Описание объекта: Построенное здание с цоколем и тремя полноценными этажами — отличная планировка под разные виды бизнеса. Общая площадь — 435 м², что дает простор для оптимальной организации рабочих зон и хранения. Высокий потенциал для развития бизнеса благодаря расположению в торговом узле с постоянными покупательскими потоками. Преимущества: ✔ Близость к центральному рынку тканей и аксессуаров — сильный трафик клиентов круглый год. ✔ Удобный подъезд и логистика для грузового транспорта. ✔ Возможность масштабирования деятельности под ваши задачи. Доп. описание: также имеются: кондиционер Номер в базе: 12149045. Район: Свердловский район

Справки из Кадастра:

г. Бишкек, р-н Свердловский, ул. Менделеева

Закажите проверку юристом:

Объявление на карте

Написать комментарий