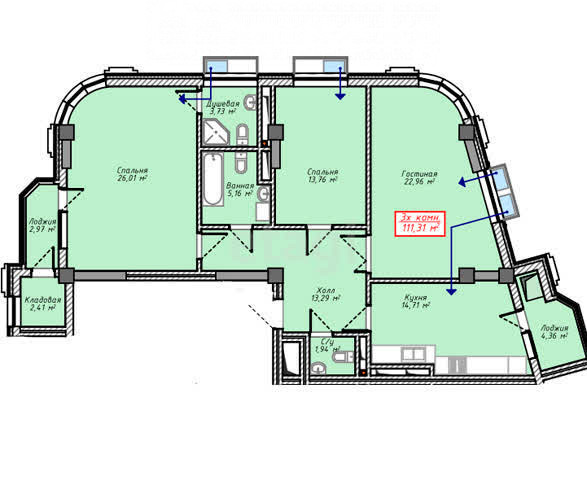
3-комн. кв., 111.31 м2

Бишкек, 7 м-н, 7-й микрорайон, 52
$ 264 456
23 174 250 сом
$ 2 376/м2
208 196 сом/м2
Добавлено 2 месяца назад Поднято 18 часов назад  709  6
Тип предложения
от агента
Серия
индивид. планировка
Дом
монолитный, 2023 г.
Этаж
8 этаж из 15
Площадь
111.31 м2, жилая: 62.73 м2
Высота потолков
3.3 м.
Возможность ипотеки
есть

Средняя цена

Для сравнения недвижимости House.kg использует такие параметры как комнатность, серия, район расположения. Эти цифры могут не совпадать с рыночной ценой, на которую влияет множество факторов. Для получения более точных данных воспользуйтесь профессиональной оценкой недвижимости.

Продажа, 3-комн. кв., индивид. планировка, Бишкек, 7 м-н

$ 156 156 $ 1 863/м2 13 683 950 сом 163 255 сом/м2

Описание от продавца

Продаётся светлая трехкомнатная квартира с дизайнерским ремонтом в одном из лучших ЖК «Испанский дом» от одного из лучших застройщиков страны, компании «Авангард Стиль». Квартира выглядит современно и аккуратно, все сделано со вкусом и продумано для комфортной жизни без лишних вложений. На этаже всего две квартиры — тишина, приватность и ощущение премиального уровня каждый день. Дом расположен в верхней зоне города: чистый воздух, спокойная атмосфера и при этом рядом всё необходимое для удобной жизни. Отличный вариант для семьи и тех, кто ценит качество и комфорт. Доп. описание: санузел совмещенный, алюминиевые окна, в доме есть: детская площадка, закрытый двор, ворота, охрана, видеонаблюдение, наземный паркинг, подземный паркинг, лифт пассажирский, лифт грузовой, ремонт по дизайн-проекту, также имеются: телефон, интернет, кабельное телевидение, кондиционер, счетчики холодной и горячей воды, домофон, железная дверь Номер в базе: 12125245. Район: Октябрьский район

Объявление на карте

Написать комментарий