Отчёт из Кадастра

Коммерциялык мүлк, 230.4 м2

Бишкек, Аламедин базар, Рыбинский пер.
$ 291 357
25 520 000 сом
$ 1 265/м2
110 764 сом/м2
Кошулганы: 10 ай мурун Жогору көтөрүлгөнү: 21 саат мурун  1894  2
Сүйлөмдүн түрү
агенттен
Кабат
2 кабат / 2
Аянты
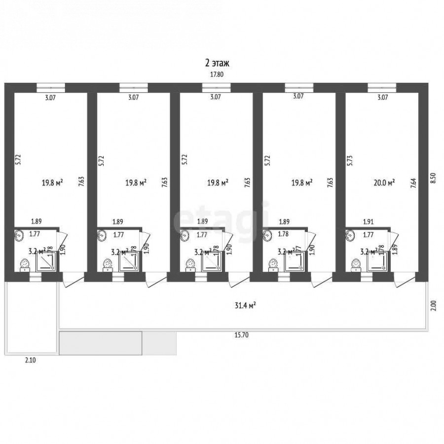
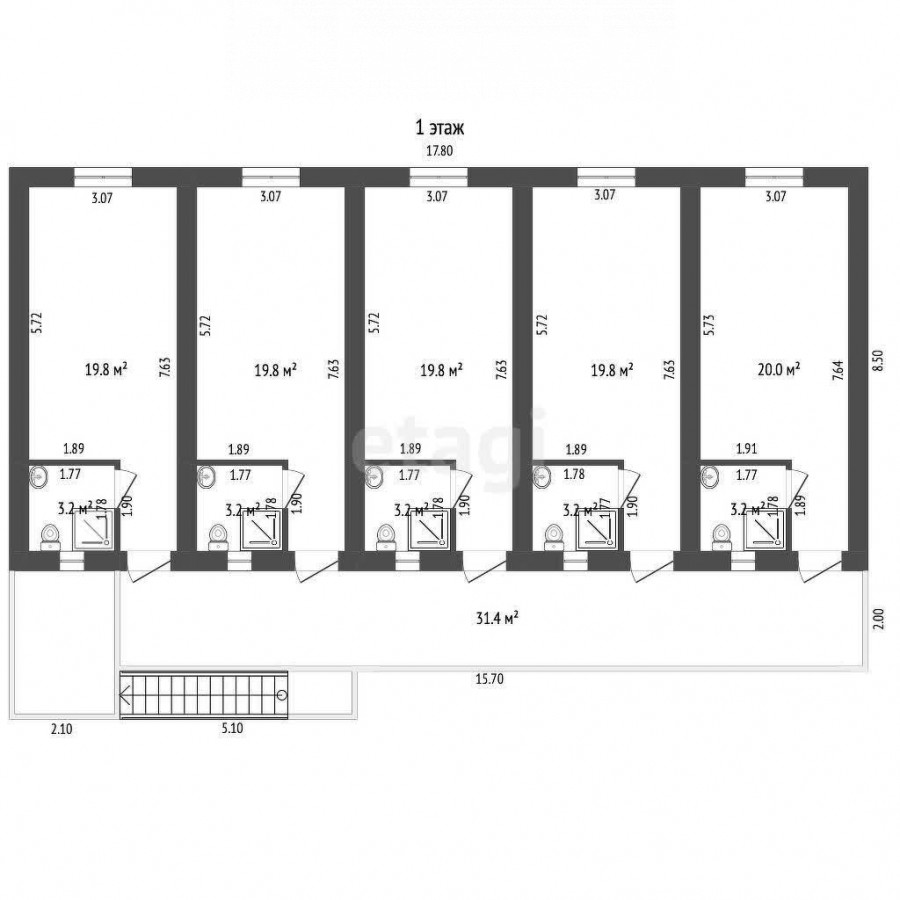
230.4 м2, турак жай
Участок аянты
2.304 соткалар
Шыптын бийиктиги
3 м.
Ипотека мүмкүндүгү
жок

Орточо баа

Кыймылсыз мүлктү салыштыруу үчүн House.kg бөлмөлөрдүн санын, сериясын, жайгашкан жери сыяктуу параметрлерди колдонот. Бул сандар базар баасына дал келбеши мүмкүн, буга көптөгөн факторлор таасир этет. Тагыраак маалымат алуу үчүн, кыймылсыз мүлктүн кесипкөй баасын пайдаланыңыз.

Сатуу, коммерциялык мүлк, Бишкек, Аламедин базар

$ 150 000 $ 972/м2 13 138 500 сом 85 137 сом/м2

Сатуучудан сыпаттама

Продается готовый бизнес с хорошим доходом.Гостиница расположена по первой линии в тихом районе.Отличное расположение делает обьект привлекательным как для туристов,так и для деловых гостей.Бизнес-гостиница расположена в удобном районе с развитой инфракструктурой,в шаговой доступности магазины,базар,школа,детские учреждения.Хорошая транспортная доступность,рядом остановки общественного транспорта,удобные выезды на основные магистрали.Высокий арендный потенциал круглый год. Доп. описание: также имеются: охрана, приборы учета воды, тепла Номер в базе: 11870344. Район: Свердловский район

Которуу

Кадастрдан күбөлүктөрү:

р-н Свердловский, г. Бишкек, пер. Рыбинский

Юристтин кароосуна буйрук бериңиз:

Жарыя картада

Комментарий жазуу