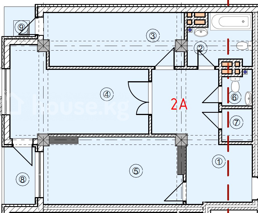
2-бөлм. бат., 79 м2

Бишкек, Карпинка, Суюмбаева 51/Токтогула
$ 105 000
9 188 550 сом
$ 1 329/м2
116 311 сом/м2
Кошулганы: 9 саат мурун Жогору көтөрүлгөнү: 9 саат мурун  47
Сүйлөмдүн түрү
ээсинен
Серия
элитка
Үй
монолиттүү, 2024 г.
Кабат
9 кабат / 9
Аянты
79 м2, ашкана: 14 м2
Жылытуу
борбордук
Абалы
самоотделка (псо)
Сантүйүн
өзүнчө
Газ
магистралдык
Балкон
балкон
Унаа токтотуу жайы
паркинг
Башкалар
тынч короо
Титулдук документтер
үлүш келишими, кызыл китеп
Алмашуу мүмкүндүгү
алмашуу сунушталбайт

Орточо баа

Кыймылсыз мүлктү салыштыруу үчүн House.kg бөлмөлөрдүн санын, сериясын, жайгашкан жери сыяктуу параметрлерди колдонот. Бул сандар базар баасына дал келбеши мүмкүн, буга көптөгөн факторлор таасир этет. Тагыраак маалымат алуу үчүн, кыймылсыз мүлктүн кесипкөй баасын пайдаланыңыз.

Сатуу, 2-бөлм. бат., элитка, Бишкек, Карпинка

$ 121 200 $ 1 686/м2 10 606 212 сом 147 542 сом/м2

Сатуучудан сыпаттама

Продается двухкомнатная квартира под ПСО, площадью 78,6м2 на 9 этаже из 9 (тех этаж) в жилом комплексе Раян Твинс по адресу улица Суюмбаева 51 (карпинка токтогула). Коммуникации центральные, отопление от ТЭЦ, жильцы заселены на 80%, лифт работает.

Которуу

Жарыя картада

Сизге комментарий жазуу үчүн кирүү же катталуу керек