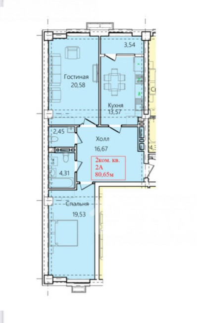
2-комн. кв., 79 м2

Бишкек, Горького - Алма-Атинская, Горького
$ 90 850
7 955 735 сом
$ 1 150/м2
100 706 сом/м2
Добавлено 3 месяца назад Поднято 12 дней назад  1336  2
Тип предложения
от собственника
Серия
элитка
Дом
монолитный, 2024 г.
Этаж
11 этаж из 14
Площадь
79 м2
Отопление
центральное
Состояние
под самоотделку (псо)
Высота потолков
3 м.
Правоустанавливающие документы
договор долевого участия

Средняя цена

Для сравнения недвижимости House.kg использует такие параметры как комнатность, серия, район расположения. Эти цифры могут не совпадать с рыночной ценой, на которую влияет множество факторов. Для получения более точных данных воспользуйтесь профессиональной оценкой недвижимости.

Продажа, 2-комн. кв., элитка, Бишкек, Горького - Алма-Атинская

$ 88 500 $ 1 295/м2 7 749 945 сом 113 403 сом/м2

Объявление на карте

Вам нужно войти или зарегистрироваться, чтобы написать комментарий