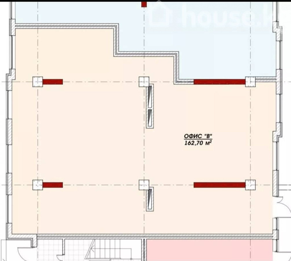
Коммерциялык мүлк, 162 м2

Бишкек, Ден Сяопина - Фучика, Фучика 38/2/Рыскулова
$ 165 000
14 445 750 сом
$ 1 019/м2
89 171 сом/м2
Кошулганы: 21 күн мурун Жогору көтөрүлгөнү: 22 саат мурун  270  1
Сүйлөмдүн түрү
агенттен
Үй
кирпич, 2022 г.
Объекттин түрү
башка коммерциялык кыймылсыз мүлк
Кабат
1 кабат / 12
Аянты
162 м2
Жылытуу
борбордук
Абалы
самоотделка (псо)
Шыптын бийиктиги
2.8 м.
Титулдук документтер
үлүш келишими

Орточо баа

Кыймылсыз мүлктү салыштыруу үчүн House.kg бөлмөлөрдүн санын, сериясын, жайгашкан жери сыяктуу параметрлерди колдонот. Бул сандар базар баасына дал келбеши мүмкүн, буга көптөгөн факторлор таасир этет. Тагыраак маалымат алуу үчүн, кыймылсыз мүлктүн кесипкөй баасын пайдаланыңыз.

Сатуу, коммерциялык мүлк, Бишкек, Ден Сяопина - Фучика

$ 234 150 $ 830/м2 20 499 833 сом 72 667 сом/м2

Сатуучудан сыпаттама

📌Продается нежилое помещение в районе Шлагбаума, в ЖК «Береке» 🏢 📍Локация: ул. Фучика 38/4 🏢 Этаж: 1 из 9 📐 Общая площадь: 162 м2 🪜 высота потолка 3 метра 💼 Документы - ДДУ (договор долевого участия) ❗️Очень оживленный район • Рядом: мед.центр «Vedanta” 🏬, ошский рынок 🧾, магазины🛒 и т.д. •удобная транспортная развязка 🚕🚎 🏭 Коммуникации: - электричество - водоснабжение - центральная канализация 💵 Цена: 165000$ ☎️ +996 501-67-00-67 (WhatsApp/звонки)

Которуу

Жарыя картада

Сизге комментарий жазуу үчүн кирүү же катталуу керек