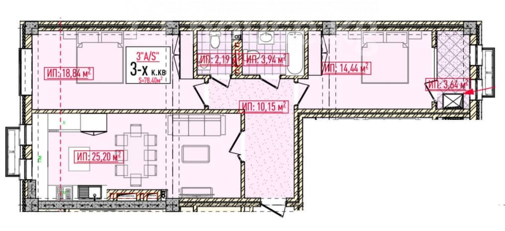
3-комн. кв., 78.4 м2

Бишкек, Горького - Алма-Атинская, Горького
$ 98 000
8 582 840 сом
$ 1 250/м2
109 475 сом/м2
Добавлено 2 месяца назад Поднято 18 часов назад  341
Тип предложения
от агента
Серия
элитка
Дом
монолитный, 2024 г.
Этаж
9 этаж из 14
Площадь
78.4 м2
Отопление
центральное
Состояние
под самоотделку (псо)
Высота потолков
3 м.
Правоустанавливающие документы
договор долевого участия

Средняя цена

Для сравнения недвижимости House.kg использует такие параметры как комнатность, серия, район расположения. Эти цифры могут не совпадать с рыночной ценой, на которую влияет множество факторов. Для получения более точных данных воспользуйтесь профессиональной оценкой недвижимости.

Продажа, 3-комн. кв., элитка, Бишкек, Горького - Алма-Атинская

$ 99 000 $ 1 157/м2 8 670 420 сом 101 330 сом/м2

Описание от продавца

ЖК Нова Сити 3 комнатная квартира студия район Горького/Алматинка псо сдан можно начинать ремонт лифт работает 78,4 м2 этаж 9 и 10 сквозная планировка окна на восток и запад ( технопарк и во двор) цена: торг есть после осмотра 0506 72 77 72 0506 72 01 72 Мадина

Объявление на карте

Вам нужно войти или зарегистрироваться, чтобы написать комментарий