Коммерческая недвижимость, 531 м2

Сокулук 19/южная
$ 200 000
17 516 000 сом
$ 377/м2
32 987 сом/м2
Добавлено 3 месяца назад Поднято 1 месяц назад  1241
Тип предложения
от собственника
Дом
кирпичный
Тип объекта
цеха, заводы, фабрики, мастерские
Этаж
3 этаж из 3
Площадь
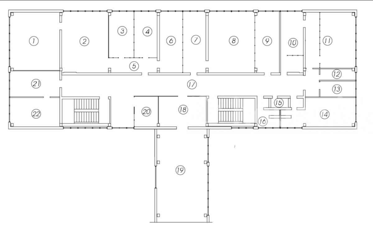
531 м2
Состояние
хорошее
Телефон
есть
Интернет
проводной
Высота потолков
3 м.

Средняя цена

Для сравнения недвижимости House.kg использует такие параметры как комнатность, серия, район расположения. Эти цифры могут не совпадать с рыночной ценой, на которую влияет множество факторов. Для получения более точных данных воспользуйтесь профессиональной оценкой недвижимости.

Продажа, коммерческая недвижимость, Сокулук

$ 485 527 $ 702/м2 42 522 455 сом 61 481 сом/м2

Описание от продавца

торг уместен красная книга действующий бизнес

Продаётся производственное помещение (фармацевтического типа) . 📍 Село Кожомкул, Сокулукский район, Чуйская область Продаётся третий этаж производственного здания, площадью около 531 м². Помещение в собственности (есть красная книга, техпаспорт). Ранее использовалось для фармацевтического производства: фасовка ваты и марли, изготовление мазей, настоек, сиропов. Имеется действующая лицензия на фармацевтическую деятельность, лаборатория и всё необходимое инженерное обеспечение. 🔹 Основные характеристики: Этаж: 3-й, площадь 531 м² Все документы в порядке, собственность Электричество (3 фазы), вода, подключен центральную канализацию. Лаборатория для анализа спирта и сиропов Возможность быстрого запуска производства Удобный подъезд, отдельный вход Подходит для: 🧴щвейнего, фармацевтического, косметического, лабораторного, упаковочного, пищевого производства или как складские помещения для хранения товаров. 💵 Цена: 200 000 USD (возможен торг) 📞 Телефон: 0702428311 🕓 Просмотр в удобное время по предварительному звонку.

Объявление на карте

Вам нужно войти или зарегистрироваться, чтобы написать комментарий