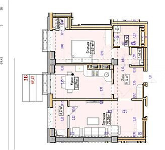
2-room apartment, 69.42 sq. m

This ad is not active
View similar ads