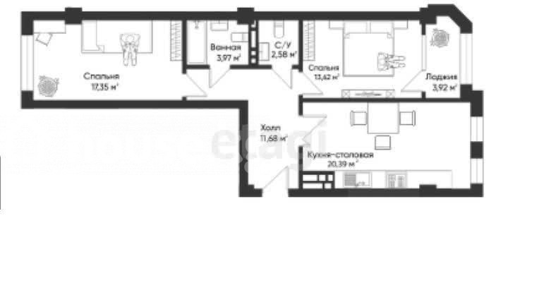
2-room apartment, 74.78 sq. m

Bishkek, АЮ Grand, Ауэзова, 5
$ 73 875
6 470 000 som
$ 988/sq. m
86 520 som/sq. m
Added 10 months ago Moved up 10 hours ago  1969  3
Type of offer
from agent
Category
individual layout
House
brick, 0 г.
Floor
11 floor / 15
Area
74.78 sq. m, living: 50 sq. m
Ceiling height
3 m.
Possibility of getting a mortgage
available

Average price

To compare real estate, House.kg uses such parameters as room number, series, location. These numbers may not match the market price, which is influenced by many factors. For more accurate data, use a professional real estate appraisal.

Sale, 2-room apartment, individual layout, Bishkek, АЮ Grand

$ 77 889 $ 1 368/m2 6 821 519 som 119 809 som/m2

Description from the seller

Продается 2х комнатная квартира в строящемся Жилом Комплексе Восточный Парк 2 от СК Дельмар Групп. Район мкр Тунгуч по улице Ауэзова пересекает улица Анкара. Сдача ПСО 2й квартал 2026 года. Блок В. Документы Договор Долевого участия, проходит регистрацию в гос регистре. Газовое отопление. Лифты финские фирмы Kone. Красная книга. Закрытый двор, видеонаблюдение. Развитая инфраструктура в шаговой доступности: Школы, детские сады, поликлиника, аптеки, магазины, развлекательные центры и тд. Доп. описание: санузел раздельный, пластиковые окна, в доме есть: детская площадка, закрытый двор, ворота, охрана, наземный паркинг, без лифта, черновая отделка, также имеются: телефон, интернет, кабельное телевидение, счетчики холодной и горячей воды, домофон, железная дверь Номер в базе: 11983308. Район: Октябрьский район

Translate

Real estate on the map

Leave a comment