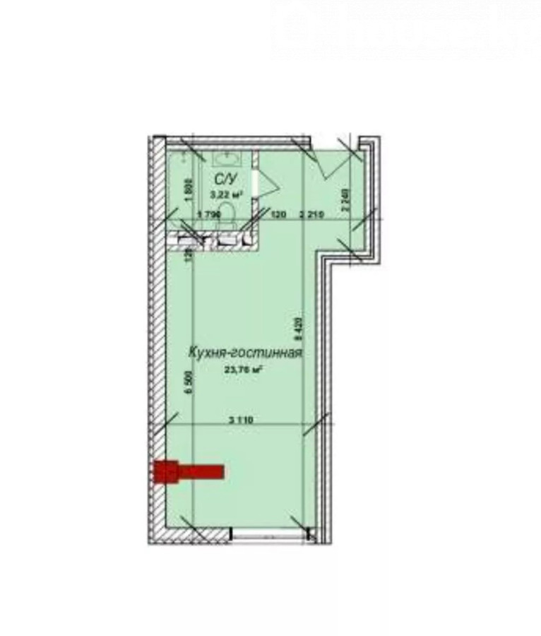
1-комн. кв., 27 м2

Бишкек, Ден Сяопина - Фучика, Фучика
$ 32 000
2 802 240 сом
$ 1 185/м2
103 787 сом/м2
Добавлено 4 месяца назад Поднято 18 дней назад  1098  2
Тип предложения
от агента
Серия
элитка
Дом
кирпичный, 2025 г.
Этаж
5 этаж из 6
Площадь
27 м2, жилая: 27 м2
Отопление
на газе
Состояние
под самоотделку (псо)
Санузел
совмещенный
Газ
магистральный
Правоустанавливающие документы
договор долевого участия

Средняя цена

Для сравнения недвижимости House.kg использует такие параметры как комнатность, серия, район расположения. Эти цифры могут не совпадать с рыночной ценой, на которую влияет множество факторов. Для получения более точных данных воспользуйтесь профессиональной оценкой недвижимости.

Продажа, 1-комн. кв., элитка, Бишкек, Ден Сяопина - Фучика

$ 53 250 $ 1 165/м2 4 663 103 сом 102 019 сом/м2

Описание от продавца

СРОЧНО ПРОДАЕТСЯ СТУДИЯ ПОД ПСО, объект на стадии завершения✅ Дом сделан из кирпича 🧱 Площадь: 27,18 м2 Вся центральная коммуникация, кроме газа (газ автономный) Очень хорошая транспортная развязка, инфраструктура 🔥 Находится по улице Фучика, напротив здании Газпром и рынка Сары Озон😍 АГЕНСТВА ПРОСЬБА НЕ БЕСПОКОИТЬ! Цена: 32000$ Есть мини торг!

Объявление на карте

Вам нужно войти или зарегистрироваться, чтобы написать комментарий