2-бөлм. бат., 65 м2

Бишкек, Көк-Жар т/ж, Молдокулова 100
$ 54 800
4 794 452 сом
$ 843/м2
73 761 сом/м2
Кошулганы: 10 ай мурун Жогору көтөрүлгөнү: 25 күн мурун  2129  7
Сүйлөмдүн түрү
агенттен
Серия
элитка
Үй
кирпич, 2028 г.
Кабат
9 кабат / 14
Аянты
65 м2
Абалы
курулуп бүтө элек
Газ
магистралдык
Унаа токтотуу жайы
паркинг
Коопсуздук
видеобайкоо
Титулдук документтер
үлүш келишими, кызыл китеп

Орточо баа

Кыймылсыз мүлктү салыштыруу үчүн House.kg бөлмөлөрдүн санын, сериясын, жайгашкан жери сыяктуу параметрлерди колдонот. Бул сандар базар баасына дал келбеши мүмкүн, буга көптөгөн факторлор таасир этет. Тагыраак маалымат алуу үчүн, кыймылсыз мүлктүн кесипкөй баасын пайдаланыңыз.

Сатуу, 2-бөлм. бат., элитка, Бишкек, Көк-Жар т/ж

$ 91 506 $ 1 399/м2 8 005 860 сом 122 399 сом/м2

Сатуучудан сыпаттама

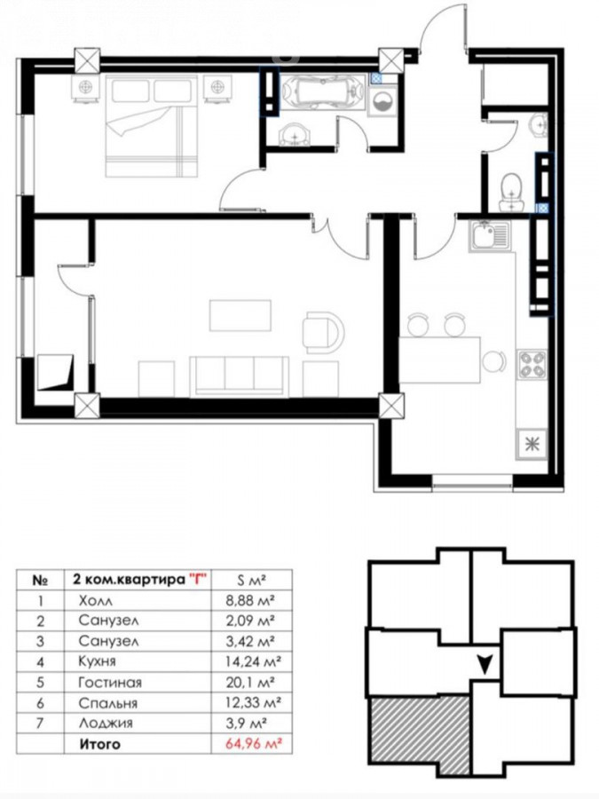
🔥 Продается 2-комнатная квартира в новом ЖК “Лотос”! 🔥 📍 Расположение: ж/м Кок-Жар, ул. Молдокулова, 100 🏢 Застройщик: One Construction 🔝 Этаж: 9 из 14 📐 Площадь: 64,96 м² 🛠 Срок завершения строительства: 2028 год Преимущества ЖК “Лотос”: ✅ Центральные коммуникации и автономное отопление ✅ Высокая энергоэффективность: • Базальтовое утепление • Вентилируемый фасад ✅ Безопасность и комфорт: • Закрытый двор • Система видеонаблюдения с распознаванием лиц ✅ Современная инфраструктура: • Подземный паркинг • Воркаут-зоны • Барбершоп, супермаркет и кофейня прямо на территории 📜 Документы: Красная книга, Договор долевого участия 890$ за м2 цена: 57800$ 0222882239 ID 1747

Которуу

Жарыя картада

Сизге комментарий жазуу үчүн кирүү же катталуу керек