Экспертное агентство «Кыргыз Недвижимость».
За 8 лет в сфере недвижимости мы набрались колоссального опыта и готовы делиться с вами!
Мы собрали в одном месте лучших экспертов рынка, чтобы предложить клиентам лучшее – глубокие познания рынка, профессиональные рекомендации и самые выгодные предложения по продаже и покупке квартир!
Более 1000 довольных клиентов!
Реализовано порядка 75000 квадратных метров!
Мы за открытость и прозрачность в сделках!
Предоставляем большой спектр услуг:
*помощь в реализации недвижимости (квартира, дом, участок, коммерческое помещение)
*помощь в приобретении недвижимости (квартира, дом, участок, коммерческое помещение)
*юридическое сопровождение
*квартиры от надежных застройщиков без переплат
*бесплатная консультация

Читать полностьюСкрыть
Цена от
Цена до
Высота потолков от, м
Высота потолков до, м
Общая площадь от, м2
Общая площадь до, м2
Жилая площадь от, м2
Жилая площадь до, м2
Площадь кухни от, м2
Площадь кухни до, м2
Год постройки от
Год постройки до
Площадь участка от, соток
Площадь участка до, соток
$ 94 000
8 232 520 сом
$ 1 382/м2
121 066 сом/м2
🔥 Срочно продается 2-комнатная квартира! 📍 Улица Анкара, напротив университета Университет Ала-Тоо 🏗 Застройщик: Эмарк Строй 🏢 8 этаж из 9 📐 Общая площадь — 68 м² 🧱 Кирпичный дом 🔥 Центральное отопление (ТЭЦ) 💧 Все коммуникации — центральные 🚿 Раздельный санузел 📄 Техпаспорт имеется 🪑 В кв...
16 часов назад  21

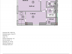
1-комн. кв., 48 м2, 5 этаж из 9

ЖК "Молодежный Kvartal Жаштардын"

Бишкек, Магистраль, Ч. Айтматова/Масалиева
$ 79 500
6 962 610 сом
$ 1 656/м2
145 054 сом/м2
Продаю 1-комнатную квартиру Расположение: район Молодежного квартала Рядом ТРЦ «Ала-Арча» и парк «Ынтымак» Площадь: 48 м² Этаж: 5/9 Квартира продаётся с мебелью и техникой Документы: Тех паспорт Цена: 79 500 $ Цена в сомах: 6 952 275сом ID: 81720
16 часов назад  37

2-комн. кв., 60.54 м2, 12 этаж из 14

ЖК New City

Бишкек, Магистраль, ул. Куттубаева, 15
$ 67 500
5 911 650 сом
$ 1 115/м2
97 649 сом/м2
Продается 2х квартира Район Асанбай ЖК Нью Сити СК Элит Хаус площадь 60.54м2 этаж 12/14 сдача в конце 2027г цена 67500$ ID: 81722
16 часов назад  17  1
$ 89 000
7 794 620 сом
$ 12 714/сотка
1 113 517 сом/сотка
Участок мечты у подножия гор😍 🏡 Продается участок в живописном районе Таш-Мойнок, дача Медик ! 📍 Участок площадью 6,5 соток, в экологически чистом и тихом месте. ✅ Участок с небольшим уклоном, что открывает прекрасный вид на окрестности и даёт отличную возможность для террасного строительства ...
23 часа назад  81
$ 205 000
17 953 900 сом
$ 1 723/м2
150 873 сом/м2
💎 НИЦЦА РЕЗИДЕНС — премиальный жилой комплекс Абсолютный комфорт и приватность в одном из лучших районов города. О квартире: • Этаж: 2 из 5 • Площадь: 119 м² • Высота потолков до 3,5 м • Документы полностью готовы к сделке О комплексе: • 1,5 га собственной территории • Всего 166 кв...
23 часа назад  71

Дом, 4-комн., 170 м2, 4 сотки

Бишкек, Рухий Мурас ж/м
$ 145 000
12 699 100 сом
$ 853/м2
74 701 сом/м2
Продаётся дом 170 м2 | ПСО Район: Рухий Мурас-2. 100 метров от Горького Жилые комнаты- 5 Имеется подвал (цокольный этаж) 23.78 м2 Участок 4 сотки Размеры участка 22*18 ID: 81358
23 часа назад  79

2-комн. кв., 92 м2, 3 этаж из 16

Агат

Бишкек, Ак Кеме, Джунусалиева/Ажыбек Баатыра
$ 140 000
12 261 200 сом
$ 1 522/м2
133 274 сом/м2
Срочно продаётся 2-комнатная квартира в ЖК «Агат» 📍 Район Ак-Кеме (старый аэропорт) Площадь: 91,8 м² Этаж: 3 из 16 Планировка: линейная, окна на юго-запад Состояние: ПСО Лифты уже запущены, все коммуникации центральные, автономное отопление. Документы на руках, быстрый выход на сделку. Те...
23 часа назад  76

1-комн. кв., 40 м2, 1 этаж из 5

Жилой комплекс КУТ ПАРК

Бишкек, Боталиева - Тулебердиева, Манаса-Васильева
$ 65 800
5 762 764 сом
$ 1 645/м2
144 069 сом/м2
Продажа 1 комн.квартиры 39м2 Со свежим ремонтом! Квартира полностью готова к проживанию, мебель и техника остаются. ЖК «Кут Парк» от надежного застройщика Кутстрой. На 2 этаже из 5 Тихий, малоквартирный дом Центральные коммуникации Отопление газовое Санузел совмещённый Документы: ДДУ ...
23 часа назад  94

3-комн. кв., 97 м2, 9 этаж из 14

Жилой комплекс "IHLAS-Джал+"

Бишкек, Джал 15 м-н, Ахунбаева/Тыналиева
$ 178 000
15 589 240 сом
$ 1 835/м2
160 714 сом/м2
🏡 Продаётся 3-комнатная квартира с новым евроремонтом в Джал-15 Просторная, светлая квартира в одном из самых удобных и развитых районов города. Отличный вариант как для семьи, так и для инвестиций. 📍 Район: Джал-15 🏢 Этаж: 9 из 14 📐 Площадь: 97.4 м² (Сквозная планировка) 🏙 Дом: современн...
23 часа назад  71

3-комн. кв., 68 м2, 7 этаж из 9

Бишкек, Центральная мечеть, Гоголя
$ 106 000
9 283 480 сом
$ 1 559/м2
136 522 сом/м2
Продается 3к.квартира 📍 в р-не Токтогула/Гоголя площадь 68м2 7эт/9 106 серия не угловая средний подъезд В шаговой доступности: - 65, 11 школы - детские сады N124, N35 - кафе, рестораны, магазины и т.д. 🚙 Удобная транспортная развязка 9 275 000сом (106’000$) Звоните, покажем ...
23 часа назад  70