ЖК «Эмель»

Застройщики на Хаусе

Состояние объекта
строится
Срок сдачи
4 квартал 2025
Расположение
Бишкек, Горького - Алма-Атинская, Горького/ Алма-Атинская Показать на карте
Рейтинг
Застройщик
Телефон отдела продаж
Показать номер
+996 (704) 45-45-45
Тип дома
монолитный
Этажность
12

Об объекте

ЖК «Эмель» — проект комфорт-класса который расположен в восточной части нашей столицы. Комплекс возводится на пересечении улиц Горького/ Алма-Атинская, неподалёку от торгово - развлекательного комплекса Технопарк. И находится в непосредственной близости от центра города, отлично подойдёт для активных горожан, тех, кто привык жить в быстром темпе Продуманные планировки, подземные и гостевые паркинги, современные технологические решения и видеонаблюдение на закрытой, охраняемой территории — гарантия комфорта и безопасности! На первых этажах будут располагаться коммерческие помещения Дворы будут оснащены игровыми и спортивными площадками

Читать полностью

Расположение на карте

Объявления в этом доме (18)

Загрузить еще

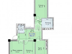
3-комн. кв., 92.6 м2, 6 этаж из 12

ЖК «Эмель»

Бишкек, Горького - Алма-Атинская, Горького/ Алма-Атинская
$ 101 860
8 921 917 сом
$ 1 100/м2
96 349 сом/м2
Продается 3-комн. квартира ЖК «Эмель» от строительной компании «Амир Строй» 92,6 кв. м2. На ул. 7-апреля/горького Этаж: 6 из 14 Отопление центральное - Дом полностью кирпичный. - Фасад - керамогранит. - Охрана и видеонаблюдение 24/7. - Подземный паркинг. - Детская площадка,озеление, троту...
13 часов назад  1527  7

3-комн. кв., 92 м2, 3 этаж из 14

ЖК «Эмель»

Бишкек, Горького - Алма-Атинская, Горького/ Алма-Атинская
$ 96 600
8 461 194 сом
$ 1 050/м2
91 970 сом/м2
Продаётся 3-ком квартира в ЖК “Эмель” ПСО рн технопарк от застройщика Амир строй Адрес: 7 Апреля, 1а (пересечение Алматинки и Горького) Площадь: 92 м² Этаж: 3 из 14 Современный жилой комплекс комфорт-класса с продуманной инфраструктурой и удобной локацией. Рядом всё необходимое для жизни: школ...
37 минут назад  351  1

3-комн. кв., 93 м2, 2 этаж из 12

ЖК «Эмель»

Бишкек, Горького - Алма-Атинская, Горького/ Алма-Атинская
$ 94 000
8 233 460 сом
$ 1 011/м2
88 532 сом/м2
Продается 3-х комнатная квартир 📍Адрес:7 Апреля-Горького 🏗Застройщик: Эмир Строй 🏢 Жилой Комплекс: Эмиль 🏛Серия: Элитка 🏬Этаж/Этажность: 2/12 📐Площадь: 93м2 💧Коммуникации: центральная ♨Отопление:центральное 🚪Состояние квартиры: ПСО 🚽Сан узел: раздельный 📃Документы: ДДУ, красная книга Ч...
1 час назад  352  2

3-комн. кв., 92.6 м2, 9 этаж из 12

ЖК «Эмель»

Бишкек, Горького - Алма-Атинская, Горького/ Алма-Атинская
$ 97 000
8 496 230 сом
$ 1 048/м2
91 752 сом/м2
Продается просторная 3‑комнатная квартира Общая площадь — 92,6 м². От надежного застройщика Амир Строй Район Технопарк (Алматинка/Горкий) Сквозная планировка 9-этаж из 12 Коммуникации:все центральные отопление ТЭЦ Документы:участок на красной книге ДДУ заверен нотариально Сдача под ПСО д...
10 часов назад  230

3-комн. кв., 92 м2, 3 этаж из 12

ЖК «Эмель»

Бишкек, Горького - Алма-Атинская, Горького/ Алма-Атинская
$ 96 600
8 461 194 сом
$ 1 050/м2
91 970 сом/м2
Срочно!!___ 3-ком ТЕХНОПАРК ____!!!! ____ПСО через 4 месяца ____ Продается 3-ком квартира р-н ТЕХНОПАРК ! ( Горького / Алматинка ) Жилой комплекс " Эмель " Застройщик " Амир прогресс " Площадь: 91,6м2 Этаж 3 из 14 Блок "Ж" - неподалёку от ТРК "Технопарк" -подземные паркинги -госте...
14 часов назад  388  3