Экспертное агентство «Кыргыз Недвижимость».
За 8 лет в сфере недвижимости мы набрались колоссального опыта и готовы делиться с вами!
Мы собрали в одном месте лучших экспертов рынка, чтобы предложить клиентам лучшее – глубокие познания рынка, профессиональные рекомендации и самые выгодные предложения по продаже и покупке квартир!
Более 1000 довольных клиентов!
Реализовано порядка 75000 квадратных метров!
Мы за открытость и прозрачность в сделках!
Предоставляем большой спектр услуг:
*помощь в реализации недвижимости (квартира, дом, участок, коммерческое помещение)
*помощь в приобретении недвижимости (квартира, дом, участок, коммерческое помещение)
*юридическое сопровождение
*квартиры от надежных застройщиков без переплат
*бесплатная консультация

Читать полностьюСкрыть
Цена от
Цена до
Высота потолков от, м
Высота потолков до, м
Общая площадь от, м2
Общая площадь до, м2
Жилая площадь от, м2
Жилая площадь до, м2
Площадь кухни от, м2
Площадь кухни до, м2
Год постройки от
Год постройки до
Площадь участка от, соток
Площадь участка до, соток

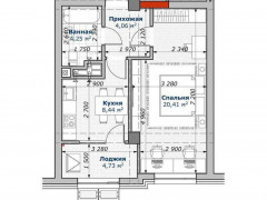
3-комн. кв., 87 м2, 7 этаж из 9

Бишкек, Азия Молл
$ 205 000
17 951 850 сом
$ 2 356/м2
206 343 сом/м2
СРОЧНАЯ ПРОДАЖА! 3-комнатная квартира рядом с Азия Молл 📍 Площадь: 87 м² 📍 Этаж: 7 из 9 📍 Состояние: Евроремонт 📍 Коммуникации: Все центральные 📍 Отопление: Газовое 📍 Документы: ДДУ 💎 Преимущества: Элитный жилой комплекс Первая линия, удобная транспортная доступность Престижный район —Азия...
20 часов назад  259

3-комн. кв., 75 м2, 4 этаж из 9

Жилой комплекс "Ак Ниет"

Бишкек, Горького - Алма-Атинская, 7 апреля 1/1/Горького
$ 93 000
8 144 010 сом
$ 1 240/м2
108 587 сом/м2
Евротрёшка 75 м² в центре | Технопарк (Горького / Алма-Атинская) 🏗 ЖК «Ак-Ниет» | СК КУТ 🏢 4 этаж из 9 | не угловая 📐 Площадь — 75 м² ✔ Кухня-гостиная 24 м² — сердце квартиры ✔ 2 изолированные спальни по 17 м² ✔ Раздельные санузлы ✔ Отдельная гардеробная ✔ Окна на восток и запад — много света весь...
20 часов назад  334  1

3-комн. кв., 73.5 м2, 5 этаж из 9

Жилой дом АСМАН

Бишкек, Кок-Жар ж/м, Кок-Жар, ул.Куйручук 28
$ 120 000
10 508 400 сом
$ 1 633/м2
142 971 сом/м2
Продается 3х ком. квартира в ЖК "АСМАН" от СК Bi-invest Площадь 73.5м² Этаж: 5/12 Состояния: евроремонт Документы: ДДУ, Красная книга, юридически чистые. Класс: Элитка, (2 лифта, подземные, наземные парковки, высокие потолки, видео наблюдения, детские площадки. Район: ЖМ Кок Жар, ул. Ахунбаева...
20 часов назад  362  1

2-комн. кв., 69 м2, 7 этаж из 12

СТАТУС

Бишкек, Арча-Бешик ж/м, Бакаева 203а
$ 128 000
11 208 960 сом
$ 1 855/м2
162 449 сом/м2
2-комнатная квартира с мебелью и техникой | ЖК «Статус» 7 этаж из 12 Площадь — 69 м² Южная магистраль / пр. Чынгыза Айтматова Просторная, светлая квартира с качественным евроремонтом в одном из самых востребованных районов города. Полностью с мебелью и техникой — формат «заезжай и живи» Газ п...
20 часов назад  347  3

1-комн. кв., 44 м2, 12 этаж из 14

Жилой комплекс «Эмель»

Бишкек, Горького - Алма-Атинская, ул. 7 Апреля (Алматинка/Горького)
$ 73 000
6 392 610 сом
$ 1 659/м2
145 287 сом/м2
Продаю 1 ком кв с ремонтом 44м2 Этаж 12/14 Все центральные коммуникации Отопление центральное Лифты работают Дду ЖК Эмель Район Технопарк Застройщик Достук Групп Цена 73000$ ID: 81278
21 час назад  258

1-комн. кв., 44 м2, 5 этаж из 10

Жилой дом "Медина"

Бишкек, Городок энергетиков, Салиева/Ауэзова
$ 54 000
4 728 780 сом
$ 1 227/м2
107 472 сом/м2
1-комнатная квартира 44,4 м² | ЖК «Медина» | Аламедин-1 Тип — элитка 5 этаж из 10 Площадь — 44,4 м² Состояние — ПСО (дом сдан) Все коммуникации центральные Увеличенная площадь — удобный формат, можно сделать просторную евродвушку. Комфортный 5 этаж — оптимальная высота для проживания. Дом уже ...
21 час назад  369  1

1-комн. кв., 47 м2, 15 этаж из 15

АК-МАРАЛ

Бишкек, Ипподром, ЛьваТолстого
$ 62 000
5 429 340 сом
$ 1 319/м2
115 518 сом/м2
1-комнатная квартира в ЖК «Ак-Марал», площадь 46,83 м² - Дом бизнес-класса высотой 15 этажей - Железобетонный каркас, кирпичное заполнение, современное утепление - Фасад из керамогранита - Высококачественные пластиковые витражные окна отопление — индивидуальные газовые котлы - Высота потолков — 3,0...
21 час назад  320

Дом, 6 и более комнат, 320 м2, 4 сотки

Бишкек, Арча-Бешик ж/м, Шералиева/Бердибаева
$ 465 000
40 720 050 сом
$ 1 453/м2
127 250 сом/м2
В продаже абсолютно новый дом, в котором еще никто не жил 2х этажный дом с площадью 320м2 с ремонтом Участок 4 сотки, по факту 4.3 сотки 1 этаж: Тамбур, гостиная, кухня, тв зона, кыргызская комната, кладовка, сан узел и просторный холл 2 этаж: 4 спальни из которых 2 мастер спальни, гард...
21 час назад  252

1-комн. кв., 44.63 м2, 3 этаж из 9

Жилой комплекс “Элдик”

Бишкек, Горького - Алма-Атинская, ул. 7-Апреля, 155в/ул. Горького
$ 65 000
5 692 050 сом
$ 1 456/м2
127 539 сом/м2
Памир строй ЖК Элдик Площадь 44,63 кв метр 3 этаж 9 не угловая Цена 65000$ ID: 81277
21 час назад  318  1

1-комн. кв., 44 м2, 12 этаж из 12

ЖК «Эмель»

Бишкек, Горького - Алма-Атинская, Горького/ Алма-Атинская
$ 73 000
6 392 610 сом
$ 1 659/м2
145 287 сом/м2
Продаю 1 ком кв с ремонтом 44м2 Этаж 12/14 Все центральные коммуникации Отопление центральное Лифты работают Дду ЖК Эмель Район Технопарк Застройщик Достук Групп Цена 73000$ Айдар 0709886588 ID: 81278
21 час назад  284